| ご注文の前に必ずお読みください。 |
| 設計・施工資料 |
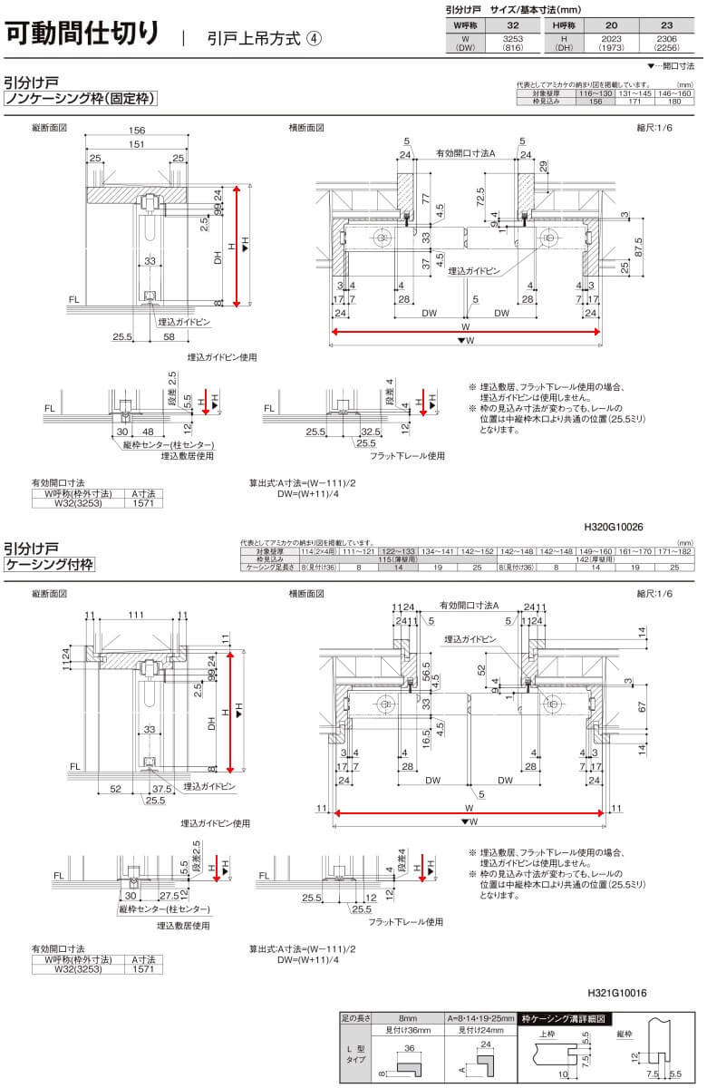
調整方法や施工上の注意事項はこちらのページでご確認ください |
| 相談・お問合わせ先 |
☆商品に関するご相談・お問合わせ☆ LIXIL お客さま相談センター
TEL. 0120-126-001 FAX. 03-3638-8447
受付時間 月~金 9:00~18:00 土日祝日 9:00~17:00
※ゴールデンウィーク/夏季休暇/年末年始を除く
★ご注文に関する相談・お問合わせ★
リフォームおたすけDIY
メール. info@dreamotasuke.co.jp TEL. 0799-64-0200 FAX. 0799-64-1111
お電話の受付時間 10:00~12:00、13:00~17:00
※土日祝/ゴールデンウィーク/夏季休暇/年末年始を除く
|
| お届け状態に関する事項 |
枠・扉・部品は工場出荷状態となる為、現地で組立が必要となります。 |
| その他商品に関する事項 |
商品画像はイメージです。実物と異なる場合がありますので、ご注意ください
正確なお色の確認にはお近くのリクシルショールーム等でカラーサンプルの確認をおすすめいたします。
|
| お支払方法 |
銀行、郵便局、コンビニ、クレジット
オプション選択項目の増減金額、送料の変更等は自動計算、自動送信メールには反映されません。
受注承諾メールを必ずお送りしておりますので、必ずそちらで確定金額をご確認ください。 |
| 納期、在庫に関する事項 |
納期は仕様により異なりますのでお急ぎの場合はお問合わせください
納期を確認後、出荷予定日をメールにてご連絡します。
|
| 梱包、配送に関する事項 |
北海道、沖縄を含む離島、遠隔地は送料が別途必要となる場合があります。
硝子は組み込んだ状態で発送しますが、枠の組立は現地対応となります。
配送には保険を適用しております。保険適用条件内のお届けから3日以内に開梱の上、検品をお願いいたします。 注文点数が多い場合は、複数回配送(数日に配送日が分かれる)になる事がありますのでご理解をお願いいたします。
|
| その他注意事項 |
確定金額は注文承諾メールにてお知らせいたしますので、必ずご確認ください。
オプション選択項目の増減金額、送料等は自動計算自動返信メールには反映されませんのでご注意ください。
当商品はお客様からのご注文後にメーカー発注しております。
メーカー手配後の無償での商品の変更、キャンセルはできませんのでご注意ください。
※メーカー手配前(注文確定前)の変更、キャンセルは可能です。
※お届け時の商品間違い、商品破損については商品代替えのみの対応となり、いかなる原因だとしても二次的な被害の保証は一切承っておりませんのでご理解の上でのご購入をお願いします。
また、不具合商品を一度取付されますと、取付時の不具合とみなされますので絶対に不具合品の取付は行わないでください。 |
【商品情報】
LIXIL/リクシルの人気室内建具 インテリア リビング建材 ラシッサ
空間と調和する美しい木目のクリエオークとクリエチェリー 。
木目になじむ、やわらかなコージーライトグレー。ラシッサSに3つの新色が登場 。
当店では「ラシッサ」をお安い価格で販売しております。
【可動間仕切りで理想の間取りを実現】
子供部屋の分割やリビング学習など、ライフスタイルに合わせて部屋を自在に仕切れます。
引戸タイプは足元段差なしの上吊方式、折れ戸タイプは全開で開放的な空間に。
規格・オーダーサイズ共に、デザイン豊富なラシッサSからお選びいただけます。
【関連キーワード】
LIXIL リクシル 室内ドア 室内引戸 可動間仕切り 間仕切り戸 パーテーション ラシッサS 引分け戸 上吊方式 吊り戸 レールなし 段差なし 子供部屋 仕切り 部屋を分ける ワークスペース リフォーム DIY 後付け 交換 おしゃれ 安い 格安

