アパートの玄関によく見られるタイプの玄関・勝手口ドアで根強い人気です。
ポスト口、換気ガラリの付いたデザインもあります。
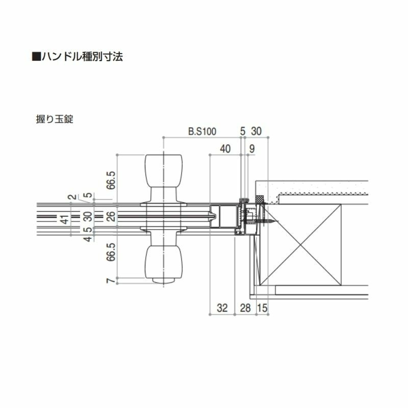
扉、枠、金具のセット品となります。内付型、半外型枠があります。
勝手口ドア
8件中
1-8件表示
8件中
1-8件表示

勝手口ドアお選びガイド
勝手口ドアの選定について
勝手口ドアはメインの出入口となる玄関ドアとは異なる用途、機能が求められます。キッチンにある場合は換気、ゴミだし等の用途。洗面所にある場合には洗濯干しのための通路。また駐車場への出入口等、生活スタイルにより様々な場所への設置が考えられます。是非使い勝手の良いドアをご選定いただきたいと存じます。
木造用の新設用勝手口ドアの取付方法は木製の開口枠にビスで取付けします。下部はモルタル仕上げ等の土間仕上げが多いと思われます。
リフォームでドアを取替をお考えの際は、既存のアルミドア枠を利用して更にアルミ枠を重ねる3方枠仕様の商品も取り揃えておりますので有効にご活用ください。3方枠仕様の内付枠の商品は屋内の間仕切りとしてもよく使用されています。
また、室内に自然の風や光を取り込むことで、心地よく省電力な暮らしを実現できるかもしれません。 各メーカーから発売されている「採風勝手口ドア」は、格子付の網戸やガラスがセットになっており、防犯性能を考慮しながらドアを締めたままでも採風・採光が得られる設計になっています。
勝手口ドアはメインの出入口となる玄関ドアとは異なる用途、機能が求められます。キッチンにある場合は換気、ゴミだし等の用途。洗面所にある場合には洗濯干しのための通路。また駐車場への出入口等、生活スタイルにより様々な場所への設置が考えられます。是非使い勝手の良いドアをご選定いただきたいと存じます。
木造用の新設用勝手口ドアの取付方法は木製の開口枠にビスで取付けします。下部はモルタル仕上げ等の土間仕上げが多いと思われます。
リフォームでドアを取替をお考えの際は、既存のアルミドア枠を利用して更にアルミ枠を重ねる3方枠仕様の商品も取り揃えておりますので有効にご活用ください。3方枠仕様の内付枠の商品は屋内の間仕切りとしてもよく使用されています。
また、室内に自然の風や光を取り込むことで、心地よく省電力な暮らしを実現できるかもしれません。 各メーカーから発売されている「採風勝手口ドア」は、格子付の網戸やガラスがセットになっており、防犯性能を考慮しながらドアを締めたままでも採風・採光が得られる設計になっています。
単板ガラス仕様(ローコスト)の勝手口ドアの選択
取付けする目的によるドア枠形状の選択
樹脂アングル・複層ガラス仕様の勝手口ドアの選択(半外型枠)
樹脂アルミ複合サッシ・複層ガラス仕様(断熱仕様)の勝手口ドアの選択
勝手口ドア売れ筋ランキング











































